Serving the A/E/C Industry

Latest Stories in Planning & Development...

ARCA-MF-Elevation-1-
Avision Development Partners Proposing 255-Unit Apartment Tower in Spring Valley
Costco Warehouse South Elevation
City of Reno Announces Permit for Costco Filed by Mistake
Apartment complex at 801 S. St Las Vegas Rendering
70-Unit Apartment Complex Proposed in Las Vegas Founders District
Costco Warehouse Elevation
Costco Wholesale Building with Gas Station Planned in South Reno
Athletics Stadium Rendering
Clark County Approves Development Agreement with Athletics

Latest Stories in Local News...

Danielle Casey
LVGEA President and CEO Danielle Casey to Shake Up Southern Nevada Economic Development
TRN-LOC-Construction-Claims
Construction Jobs Fall Alongside Home Sales
LOC-Sparks-DC-Restrictions
City of Sparks Exploring Data Center Regulations
FP-TRN-LOC-RLB-Q3-Const-Costs
Las Vegas Construction Costs See 4.85% Q3 Annual Change
Final-Updated-Graph
Construction Employment Plummets Statewide in August

Latest Stories in Trends...

TRN-LOC-Construction-Claims
Construction Jobs Fall Alongside Home Sales
FP-TRN-LOC-RLB-Q3-Const-Costs
Las Vegas Construction Costs See 4.85% Q3 Annual Change
Final-Updated-Graph
Construction Employment Plummets Statewide in August
NAIOP Panelists
Providers Race to Meet Surge in Demand for Data Centers
TRN-Confidence
Job Confidence Falls Nationally, Could Explain Las Vegas Tourism Decline

Latest Stories in Nevada Projects...

WIP-Hard-Rock
Nevada Projects 10-17-25
WIP-Library
Nevada Projects 10-10-25
Grand Sierra Resort Rendering
Nevada Projects 10-03-25
I-15 Tropicana Avenue Interchange
Nevada Projects 09-26-25
WIP-Green-Valley
Nevada Projects 09-19-25

Latest Stories in Federal...

Esmeralda 7 Map by Bureau of Land Management
Esmeralda 7 Solar Project Currently Canceled
Solar Panels on a Roof
Environmental Protection Agency Pulls $156M in Nevada-Based Solar Funding
FED-LEG-New-Housing
Proposed Legislation Aims to Increase Housing Supply
FED-LEG-LIHTC-Permanent
Tax Bill Would Make LIHTC Permanent
LOC-FED
New Law to Give N. Las Vegas Authority Over Industrial Park

Latest Stories in Budget...

LOC-BUD-Vegas-Delaying-CIP-Projs
City of Las Vegas Delaying $19.7M Worth of Capital Improvement Projects
LOC-BUD
Budget Provision Calls for Selling Millions of Acres of Western Federal Land
5e4814b9-051625_nvleg_00368
Proposed AB587 Could Pull $350M from Rainy Day Fund
Tariffs
Southern Nevada Water Authority Discusses Budget and Tariffs
NDOT_logo_t670
NDOT Discusses Budget at NAIOP Southern Nevada Breakfast Panel

Latest Stories in People on the Move...

DeBouer Awards Logo
Industry Professionals 10-14-25
Metcalf Builders
Industry Professionals 10-07-25
PPL-MC-Companies
Industry Professionals 09-30-25
Basin Street Properties Logo
Industry Professionals 09-23-25
PPL NAIOP
Industry Professionals 09-16-25

Latest Stories in Commercial Real Estate...

CRE-9911-Covington-Cross-Dr
Commercial Real Estate 10-14-25
CRE-9501-Hillwood-Drive
Commercial Real Estate 10-07-25
Colton Apartments
Commercial Real Estate 09-23-25
CRE-Ford
Commercial Real Estate 09-16-25
CRE-Mansion
Commercial Real Estate 09-09-25

Latest Stories in Legal...

FED-LEG-New-Housing
Proposed Legislation Aims to Increase Housing Supply
FED-LEG-LIHTC-Permanent
Tax Bill Would Make LIHTC Permanent
Byrd-Rule
Public Lands Sale Proposal Removed from Budget Again
LEG-PD-Campus-for-Hope
Lawsuit Filed to Prevent Planned Campus for Hope Transitive Housing Development in Las Vegas
LEG-LOC-AB224
New Law Approves Funding for Rural School District Projects

Latest Stories in Water...

Colorado River
Nevada to Lose 7% of Colorado River Allocations Due to Drought
Water-Negotiators
Water Negotiators Duck Meeting to Discuss New Colorado River Plan
LEG-WAT-Help-Hoover-Dam-Act
Proposed Legislation Could Fund Hoover Dam Upgrades
Water
Controversial Water Bill Presented to Assembly Committee
WAT-NV-Water-Efficiency-
Nevada Ranked Most Efficient Water Consumer of Basin States

Serving the A/E/C Industry

Avision Development Partners Proposing 255-Unit Apartment Tower in Spring Valley

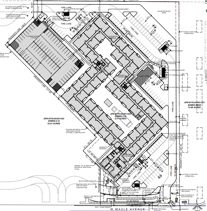
Credit: RADstudio LLC/Clark County

Avision Development Partners is bringing its proposed ARCA Multifamily to the Oct. 22 Clark County Zoning Commission meeting.

The land is owned by LMC Kaktuslife II Property Owner, LLC, while Avision and Edward Homes are serving as the developers. RADstudio LLC is the architect, and Nevada Landscape is the landscape architect. Kaempfer Crowell is providing legal representation.

The 255-unit multifamily development is proposed on a 5.5-acre site west of Buffalo Drive and north of Maule Avenue in Spring Valley. The 255 units carry a density of 46.27 dwelling units/acre.

The multifamily property will take form in a 284.4KSF residential building and a 220-space parking garage. The residential building will be five stories and 67 feet tall, while the parking garage will be three stories and 30 feet tall.

Units will range from studios to three bedrooms. There will be 20 studio, 160 one-, 55 two- and 20 three-bedroom units. Individual residences will range from 627SF to 1,224SF.

The SWC of each floor will feature a common area. Common area uses will include a leasing office, gym, theater room, workspace, rooftop lounge, an additional lounge and a game room. While 48KSF of open space would typically be required, the proposal consists of 17.2KSF.

The primary structure will be located toward the center of the site. The parking garage will sit northwest of the apartment complex. A 126-space surface parking lot is also included in the plans.

The building is described as having variable parapet rooflines and a stucco finish on the exterior walls. Each unit will contain a balcony with metal railings.

Credit: RADstudio LLC/Clark County

Additional architectural features include pop-outs, recesses and other enhancements. The description goes on to say, “The windows feature a storefront glazing system with an anodized clear finish and white vinyl unit windows.” Colors consist of Sherwin-Williams’ drift of mist, functional gray, folkstone and distance.

The parking garage will be made of precast concrete.

Access to the property will be provided via Maule Avenue toward the SEC of the site.

Developer Requests

The application requests six Waivers of Development Standards, a Use Permit, Design Review and a Master Plan Amendment. The amendment is to change the designation from Business Employment to Entertainment Mixed-Use to allow for the multifamily property.

The first waiver is to extend the building height to 67 feet, where the maximum height is typically 50 feet.

The second waiver is to reduce parking lot landscaping. This is the only waiver for which staff recommended denial.

The next waiver is to reduce landscape buffers and to reduce the decorative screen wall on the east property line from eight feet to six feet.

The next waiver consists of reducing the quantity of parking spaces to 346 stalls, where 362 are typically required. An additional waiver was requested to eliminate the 91 required EV capable parking spaces.

The final waiver is to reduce the driveway throat depth along Maule Avenue to 44 feet, where 150 feet is typically required.

Credit: RADstudio LLC/Clark County

Staff had recommended denial of the project due to the lack of open space and the reduction in parking lot landscaping.

Project History

A mixed-use project was previously approved in 2017 on the parcel. The parcel was later split into two individual sites for Phase One and Phase Two of the proposed development.

The mixed-use development on the other site was under construction when it was destroyed by a fire on June 20, 2023. Construction on the mixed-use sister project has since restarted.

After construction restarted on the mixed-use portion of the project, developers decided to develop ARCA Multifamily as a standalone project; it is no longer related to the adjacent mixed-use development.

Leave a Reply

Your email address will not be published. Required fields are marked *

Learn More About Our Services
Avision Development Partners Proposing 255-Unit Apartment Tower in Spring Valley
Avision Development Partners Proposing 255-Unit Apartment Tower in Spring Valley
Avision Development Partners is bringing its proposed ARCA Multifamily to the Oct. 22 Clark County Zoning...
Read More
Nevada Projects 10-17-25
Nevada Projects 10-17-25
Groundbreakings 1. The Boys & Girls Club of Truckee Meadows has started construction on the Eureka...
Read More
City of Reno Announces Permit for Costco Filed by Mistake
City of Reno Announces Permit for Costco Filed by Mistake
The City of Reno announced the permit for the potential Costco store at 14450 S. Virginia St. was submitted...
Read More
Esmeralda 7 Solar Project Currently Canceled
Esmeralda 7 Solar Project Currently Canceled
The Bureau of Land Management has labeled the massive Esmeralda 7 solar project as canceled on its National...
Read More
70-Unit Apartment Complex Proposed in Las Vegas Founders District
70-Unit Apartment Complex Proposed in Las Vegas Founders District
Dental Training Center & Digital Lab LLC is proposing a 70-unit apartment complex at 801 S. 7th St....
Read More
Mark Hobaica

Mark Hobaica

Executive Vice President

Core Construction

Since 2019, as CORE Construction’s Executive Vice President for Nevada, Mark ensures every client CORE serves receives the highest level of personalized care for every project. Mark’s passion is client Trust. He cares deeply about CORE’s reputation, partnerships and providing the highest quality and services, as well as most honest and best value possible. He has worked in the Las Vegas Valley and for the Public Works sector for nearly 35 years. He began as an owner in a local architectural firm designing and overseeing projects for Public Works clients for nearly 12 years. He clearly understands the expectations of the public sector, as he then directed numerous projects for over 16 years as the City Architect for the City of Henderson. His focus has always been delivering projects using CMAR or Construction Manager at Risk as he has implemented dozens of projects with his trusted approach, while always involving every stakeholder to ensure each individual receives the highest level of services expected.