Las Vegas Commercial Investment LLC is proposing a 40.8KSF retail center on 4.92 acres at the SEC of Rainbow Blvd. and Pebble Road in Enterprise.
Las Vegas Commercial Investment LLC is the owner and developer. HP Atelier is the architect and landscape design firm attached to the project. A general contractor has yet to be selected.
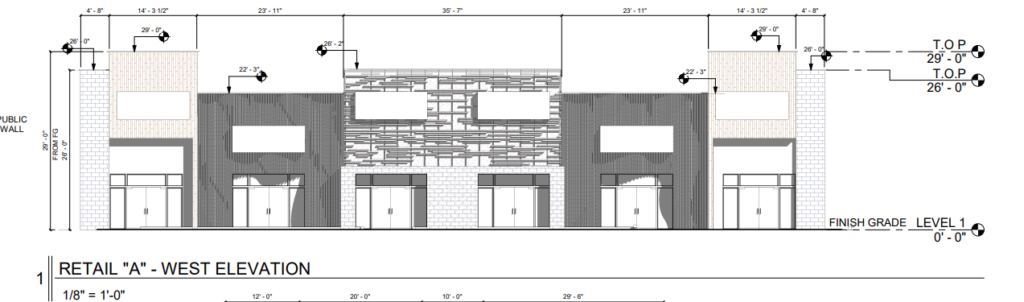
The retail center will be comprised of six separate buildings. The buildings will be constructed in phases, with the first phase planned to feature an 8.4KSF retail building, labeled Retail A, and a 3KSF drive-thru building, labeled Retail B.
Retail A will feature six different suites, each with its own respective entrance and exit. Retail B will feature two suites. Each suite will be a shell; therefore, no specific floor plans have been submitted.
The 8.4KSF retail building will be 29 feet tall. The 3KSF building will stand 26 feet and two inches tall. Both buildings will be made up of stucco, TerraSlat and granite.
The buildings will also share a color palette comprised of grey, black and tan. Each will feature a variable roofline with storefront windows and double doors.
Phase One will also include on- and off-site improvements, such as the parking lot and landscaping.
Access to the site is to be provided via a 40-foot-wide commercial driveway along Rainbow Blvd. and a 35-foot-wide commercial driveway off Pebble Road. Developers are also implementing an emergency exit driveway with a crash gate off Rainbow Blvd.

Immediately north of the site sits an existing retail area featuring a gas station and a mini-warehouse zoned Commercial General. The south contains an additional retail area, also zoned Commercial General. The east and west feature single-family developments zoned Residential Single-Family.
Multi-Phase Project
Between Retail A and B, Phase One will add 11.4KSF of development to the site. Three additional retail and restaurant buildings are planned, adding a combined 21.5KSF. Developers are also planning an 8KSF vehicle wash facility.

The buildings in Phase One will be constructed near the eastern property line toward the southern half of the site. The SEC will feature the car wash. The northern section will feature the remaining three retail buildings.
To accommodate the six commercial buildings, developers have planned 128 parking spaces, where 117 are required. The site will feature pedestrian circulation via interior walkways that connect to public sidewalks.
Developer Requests
The application consisted of a Use Permit, three Waivers of Development Standards and a Design Review. Due to the proximity of the residential neighborhood to the east, a Use Permit is required for the proposed car wash.
Staff recommended denial of the car wash, noting its closest point to a residential development is 51 feet. Staff fears the residential development may be impacted by the noise, fumes, pollution and traffic caused by the facility.
Staff recommended denial for two of the waivers. The first concerned an eight-foot-tall decorative screen wall along the shared property line, and the second was for the three future drive-thru buildings toward the northern end of the site.
Staff had no problem with the third waiver, which requested reductions to the throat depth and departure distance for the Pebble Road driveway. It also requested reducing the approach distance for the Rainbow Blvd. driveway.
The proposal is slated to appear before the Clark County Zoning Commission as part of its May 6 meeting. Project representatives said they aim to have everything constructed within 48 months.
















