By CJ Jorgensen for NEVBEX
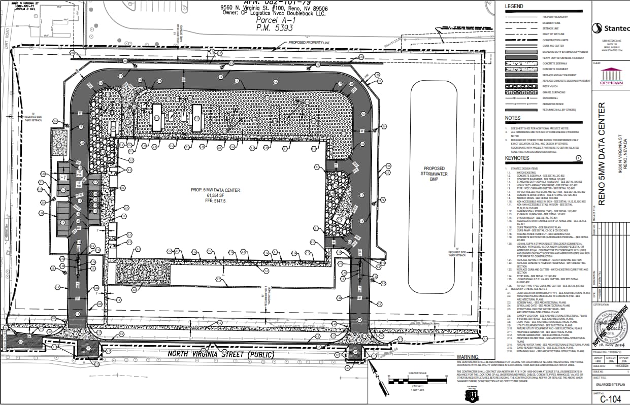
Oppidan Investment Company is requesting a conditional use permit for its proposed 5MW data center at 9630 N. Virginia St. in Reno.
The site is currently zoned industrial commercial and has a master plan land use designation of industrial. According to the application, the CUP is to allow the development of the data center and business operations between 11:00 p.m. and 6:00 a.m. “The proposed Data Center use aligns with the objectives of the zone and is consistent with surrounding existing zoning and future uses of adjacent properties,” the application document claims.
The proposed parcel is currently undeveloped and is bounded to the north by existing commercial development. The east is bounded by an undeveloped lot and Doubleback Road. West of the parcel is a mobile home park along Webb Circle. Directly to the south is North Virginia Street.
North Virginia Street will provide the property with two entrance drives, and the lot will have 19 parking stalls. The main entrance to the building will be on the northwest side, with a loading dock on the northeast side. A generator yard will also be on the northeast side of the building.

The proposed single-story data center will be an approximately 61.6KSF building across a 7-acre site on the north side of North Virginia Street just east of the intersection with Stead Blvd. The data center will be split into an office section and an industrial section. Construction plans are preliminary and subject to change.
Approximately 53KSF of industrial space will be used to accommodate server space, with the remaining space designated for the office space.
The project will also include a parking lot, sidewalk, curb/gutter, utility connectivity, landscape areas and stormwater basin. The utilities and site access are via North Virginia Street.
The initial phase will include the building shell, exterior infrastructure, stormwater management, parking, drives, landscaping and utilities. The remaining four phases will include additional interior build-out of the server space as well as additional generators to the generator yard.
Upon completion, the data center is expected to have a maximum on-site occupancy of 10-12 people. The occupancy consists of 24-hour security staff, two-to-three engineers and visits from IT operations staff, deliveries and maintenance workers.
Site work is currently anticipated for October 2025. Full occupancy/operations are expected by January 2027. Preliminary construction plans list Salas O’Brien as the architect with Stantec as the engineer and landscape architect. The documents did not identify a general contractor.
A Ward 4 Advisory Board Meeting is scheduled for Dec. 19. The Planning Commission has its official hearing on Jan. 2, 2025.










