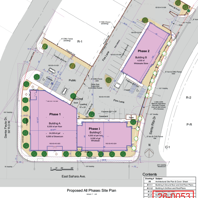
Jewelry & Minerals of Las Vegas, Et Al is proposing a multi-building shopping center on a 1.02-acre site near Sahara Avenue and Santa Rita Drive in Las Vegas.
Jewelry & Minerals of Las Vegas is the owner and developer of the redevelopment project. Jean Pierre Piron is the applicant. D. W. Strait Architecture & Planning is the architect, landscape architect and project representative.
The project, if approved, will result in a three-building commercial development totaling 37KSF. The three buildings will have heights ranging from 20 feet to 48. Building A will be 48 feet tall; Building B will be 20 feet tall, and Building C will be 36 feet tall.
The buildings are described as being, “Decorated with stucco, stone veneer, and cornice trims in neutral tones.” Primary entrances to the buildings will feature gold canopies.
The three-phase plan calls for a single commercial building to be constructed in each phase. The site is currently made up of eight separate parcels zoned Limited Commercial, Professional Office and Parking, and Single-Family Residential, with a land use designation of Low Density Residential and Transit Oriented Corridor – Low.
Developers have requested the eight parcels be combined into a single site. The entirety of the site will then be rezoned to General Commercial with a land use designation of Transit Oriented Corridor – Low. This zoning and land use combination is said to be flexible and will properly serve the proposed commercial complex.
The site currently contains commercial buildings and single-family residences. East of the site sits an existing cannabis dispensary, while the north and northeast contain duplexes and single-family residences.
While a development of this size would typically require 29 parking spaces, developers have opted to include 40. Of those parking spaces, 26 will be located behind a private access gate and will not be accessible to the public. This means that there will be 14 publicly available parking spaces, which is fewer than the required 29 and, therefore, requires approval of a variance.

The development calls for the removal of the old buildings to make way for the new structures. Building A will be three stories and will feature retail sales on the first floor, with offices and warehousing on the remaining two floors. Once complete, Jewelry & Minerals of Las Vegas will relocate its operations to this building.
Phase Two focuses on clearing the majority of the eastern portion of the property. It will also see the construction of a single-story warehouse/distribution center.
Phase Three will add the final building, which will be two stories. The building will connect to Building A. The justification letter prepared by D.W. Strait says, “Phase 1 Building A is our immediate objective, and we plan to proceed as soon as possible. The timing of Phases 2 and 3 will depend on the timing, logistics, and occupancy of Phase 1 Building A. At present, we cannot predict the whole timeline.”
The Las Vegas Planning Commission will consider the proposal during its April 14 meeting. City staff recommended approval of the General Plan Amendment, but recommended denial of the rezoning, variances and site development plan review.
















