The Clark County Zoning Commission approved a proposed 116KSF retail complex in the Chinatown area on Spring Mountain Road between Polaris Avenue and Procyon Street in Paradise.
The application indicates that Spring Mountain Procyon LLC is the property owner. According to a project representative, an entity tracing back to Windfall Group is the developer. The architect and landscape architect is sca design.
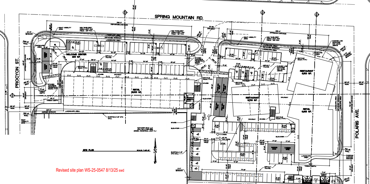
The overall development, currently called the Spring Mountain & Polaris Center, will be 116KSF. This consists of 56KSF of restaurant space, 47.8KSF of retail space, 12KSF of entertainment space and a 200SF welcome center. The shopping center will be anchored by a three-story building. Additionally, developers are planning a 161.3KSF parking garage.
The three-story building will be situated toward the northwest end of the site. The parking garage will be constructed toward the southeastern end of the site.
Retail and restaurant areas will be implemented on each of the three floors of the structure. According to the Zoning Commission’s agenda sheet, the first floor will have an overall area of 36KSF. The second floor will be 41.4KSF and the third floor will be 38.4KSF

While a development of this size would typically call for 275 parking spaces, the garage and additional on-site parking will create 492 spaces. Of those spaces, 427 will be located within the six-story garage.
Access is to be provided via three separate driveways. One will be installed off Procyon Street, one will come from Spring Mountain Road, and the third will come from Polaris Avenue.
Waivers of Development Standards
The application requested five separate waivers of development standards. The first waiver is to increase the maximum height of the development to 93 feet and one inch. Commercial General zoning typically allows a maximum height of 50 feet.
Another waiver was requested to reduce the front and side street setbacks. Two additional waivers were requested to reduce the approach distance on Procyon Street and the departure distance on Polaris Avenue.

The final waiver was requested to reduce the driveway throat depth along each of the three accessways. Prior to the meeting, staff recommended approval of each of the waivers except for the throat depth reductions.
The proposal was also recommended for approval by the Paradise Town Advisory Board.


















