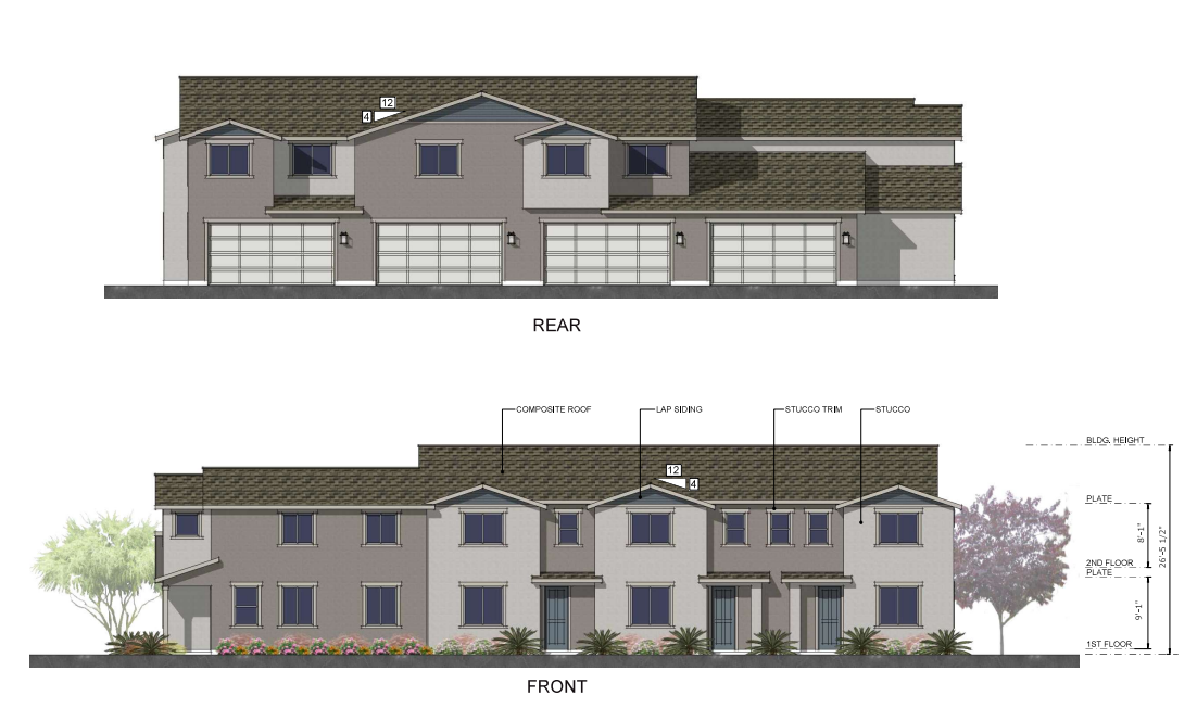
The Carson City Board of Supervisors approved the first reading for an ordinance change for the planned 240-unit Plateau Townhomes off Draco Way and Morgan Mill Road.
JC Plateau, LLC, a subsidiary of KDH Builders, is the owner. KDH will also serve as the general contractor. Wood Rodgers is the architect of record, while BSB Design is the design architect.
The townhomes are to be constructed on a 22-acre site that features an 8.2-acre common area. Townhomes will feature two-, three- and four-bedroom units. (NVBEX; May 1)
Around six of the eight acres of open space are prohibited from being developed, as they previously served as an old landfill site. The Environmental Protection Agency has barred the area from being disturbed, to which developers agreed. The Board of Supervisors discussed whether the area would count toward open space.
Developers have also been asked to create a snow removal plan. The Board also had concerns surrounding garbage pickup. A waste management plan had been submitted prior to the meeting and Waste Management confirmed it will be able to service the area.

Supervisors recommended the project return to a separate meeting in which adoption will take place. Once construction begins, it will be carried out through four distinct phases.














