Hearts Alive Village dba Hearts Alive Hooves, LLC is proposing a stable and workforce housing building at the NEC of Kyle Canyon Road and Cardenas Way in Upper and Lower Kyle Canyon.
The nonprofit is the owner and developer. HRD Homes is the design firm, and S2 Design Studio is the landscape architect. The application also includes G.C. Garcia Inc. as the correspondent.
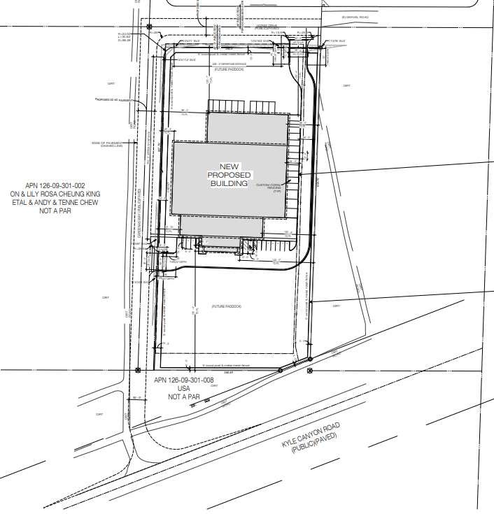
Plans consist of a single mixed-use building that will total 54.6KSF. The first story of the building will total 48.2KSF, 41.9KSF of which will be devoted to the stable. The remainder of the first floor will be dedicated to office space.
The stable will have 21.1KSF of indoor arena/paddock space toward the central portion of the building. The northern and eastern sides will contain 53 horse stalls ranging from 120SF to 324SF.
Rehabilitation areas will also be included on the first floor. This will consist of physical and hydrotherapy equipment for horse care.
The primary entrance at the southern end of the building will feature a gathering/office area. A 6.2KSF second-floor area, also located toward the south, will provide four housing units for employees who will live and work on the site.
There will be three one-bedroom units and a single two-bedroom unit. Each unit will be equipped with its own kitchen. The single-bedroom units range from 1KSF to 1.1KSF, while the two-bedroom units will be 1.5KSF.

The prefabricated metal building will reach 33 feet, four inches tall. The agenda sheet goes on to say, “The building will have metal panels with a beige finish and a silver standing seam metal roof with eaves. The north, east and west elevations will feature multiple sliding barn doors with a Shamrock Green wood color finish.”
The main entrance will be located on the southern façade. It will feature double glass doors with upper and lower-level windows. Windows will also be installed on the east and west sides of the second floor.
Corral fencing will line the turnout areas toward the northern and eastern ends of the building. Two paddock areas are planned north of the building and south of the parking area.
The perimeter of the site will be bordered by a five-foot-tall wood post and a metal mesh fence. The eastern end of the site is also set to contain a rock retaining wall that reaches a maximum height of 10.4 feet.
The mixed-use project is proposed on a 5.09-acre site in rural Clark County, roughly 25 miles from Las Vegas. Immediately north of the site is the nonprofit’s existing For the Love of Horses project.
The new location will not be open to the public, and only welcome horses referred by veterinarians. This location is intended to take care of at-risk animals.
The project calls for 12 parking spaces in a lot south of the primary structure. This includes a single ADA parking space. No EV or EV capable spaces are planned.
Access is to be provided via a 36-foot-wide driveway along Cardenas Way, south of the proposed building. An additional 36-foot-wide driveway will be installed along Horse Drive toward the NEC of the property.
Both driveways will feature decorative metal gates that will remain open during business hours. A 26-foot-wide drive aisle will run from Horse Drive toward the eastern end of the property to the parking area south of the building.
Waivers of Development Standards
The nonprofit has requested seven separate Waivers of Development Standards, along with a Use Permit and a Design Review. County staff had mixed feelings about the waivers but ultimately recommended approval of the Design Review and Use Permit.
The waivers for which staff recommended approval consist of a request to increase lot coverage; to reduce the front setback; to increase the fence height to five feet, where three is the maximum, and to reduce the number of parking spaces to 12. Typically, 22 would be required.
Staff recommended denial of three additional waivers. These requests were to increase the retaining wall height along the eastern end of the property to 11 feet from its stated three-foot maximum; to increase the fill height along the eastern property line, and to waive full off-site improvements.
The Clark County Zoning Commission is scheduled to consider the proposal during its March 4 meeting.


















